-
-
-
Tổng tiền thanh toán:
-
Kệ kho công nghiệp – Bảng giá cập nhật 2026 | HOTU VIỆT NAM
HOTU VIỆT NAM
02/02/2026
0 nhận xét
Kệ kho công nghiệp là gì?
Kệ kho công nghiệp là hệ thống kệ lưu trữ chuyên dụng được thiết kế để sử dụng trong kho hàng, nhà máy sản xuất, trung tâm logistics và phân phối. Khác với các loại kệ dân dụng thông thường, kệ kho công nghiệp có khả năng chịu tải trọng lớn.
Trong bối cảnh chi phí mặt bằng ngày càng tăng, việc đầu tư hệ thống Kệ kho hàng công nghiệp không chỉ giúp tối ưu không gian mà còn đóng vai trò quan trọng trong quản lý tồn kho, an toàn lao động và hiệu quả vận hành tổng thể.

>>> Xem thêm: Danh mục sản phẩm GIÁ KỆ KHO HÀNG từ Hotu Việt Nam
Vai trò của Kệ kho công nghiệp trong kho hàng hiện đại
Tối ưu hóa không gian lưu trữ
Hệ thống Kệ Pallet công nghiệp cho phép tận dụng tối đa chiều cao kho, giúp tăng gấp 2–4 lần sức chứa so với lưu trữ sàn truyền thống. Điều này đặc biệt quan trọng với các kho logistics, kho trung chuyển hàng hóa số lượng lớn.

Nâng cao hiệu quả quản lý hàng hóa
Với thiết kế khoa học, kệ kho công nghiệp giúp:
- Phân loại hàng hóa rõ ràng
- Dễ dàng truy xuất pallet
- Giảm thời gian xuất – nhập kho
- Hạn chế sai sót trong kiểm kê

Đảm bảo an toàn và tiêu chuẩn vận hành
Các hệ thống Kệ kho công nghiệp tải trọng lớn được thiết kế theo tiêu chuẩn an toàn, phù hợp với xe nâng và đáp ứng các yêu cầu như ISO, FEM, TCVN, GMP, CGMP... trong nhà máy sản xuất, thực phẩm, dược phẩm.

>>> Xem thêm:
- Cập nhật Bảng báo giá Kệ Selective 2025 quý khách có thể tham khảo
- Bàn giao nghệm thu dự án trang bị Kệ selecitve tới doanh nghiệp Logistic (SINGAPORE) tại KCN VSIP Bắc Ninh
Các loại Kệ kho công nghiệp phổ biến trên thị trường
Tùy theo đặc thù hàng hóa và phương thức vận hành, doanh nghiệp có thể lựa chọn các loại Kệ kho công nghiệp sau:
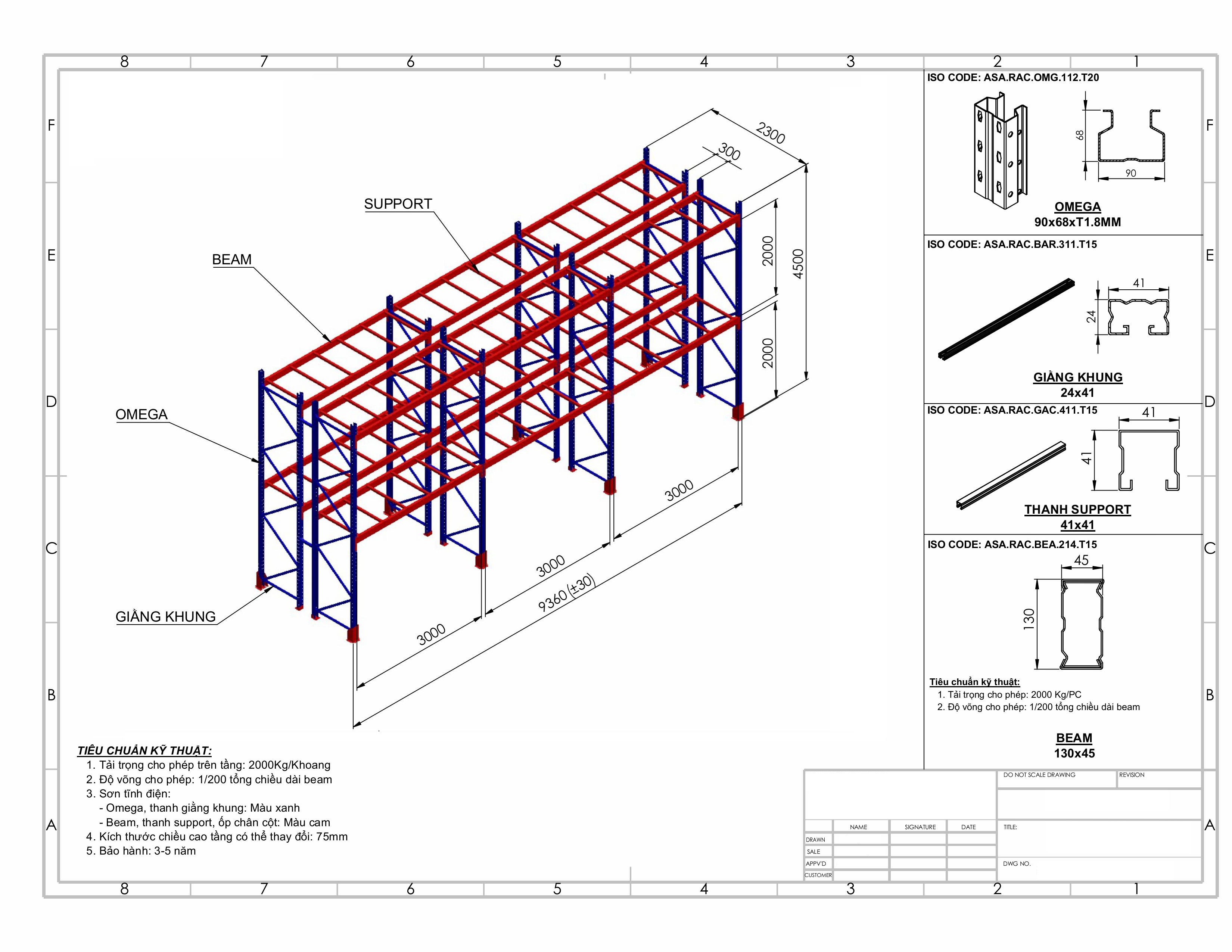
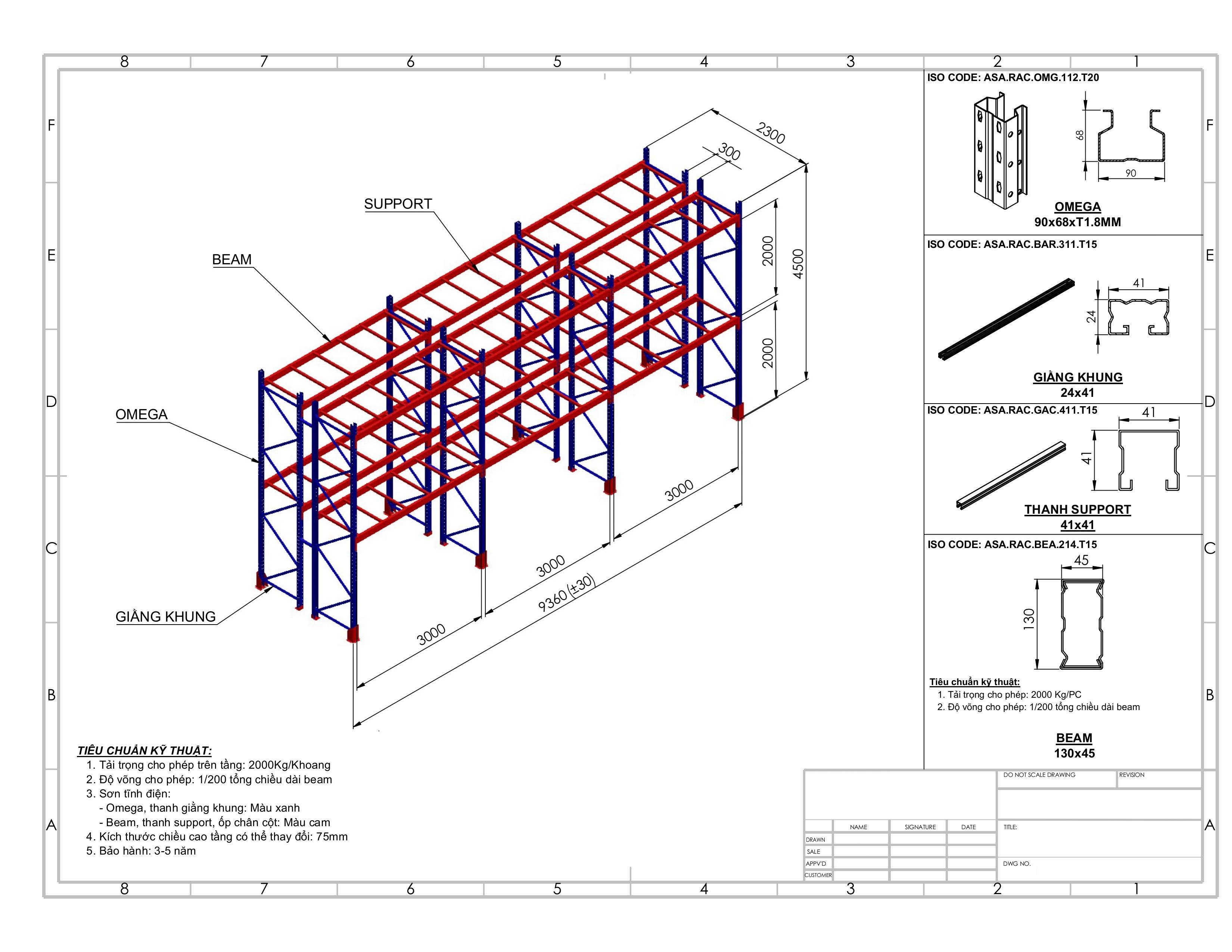
Kệ Selective – Phổ biến nhất hiện nay
Kệ Selective là loại kệ lưu trữ công nghiệp được sử dụng rộng rãi nhất nhờ khả năng:
- Truy xuất 100% pallet
- Phù hợp nhiều loại hàng hóa
- Dễ lắp đặt và mở rộng
Loại kệ này đặc biệt phù hợp với kho hàng đa chủng loại (SKU).

Kệ Drive-in / Drive-thru – Tối ưu mật độ lưu trữ
Kệ Drive-in và Kệ Drive-thru phù hợp với kho lưu trữ số lượng lớn cùng một loại sản phẩm. Ưu điểm nổi bật là:
- Mật độ lưu trữ cao
- Giảm diện tích lối đi
- Tối ưu chi phí đầu tư trên mỗi pallet

Kệ Double Deep – Tăng sức chứa
Kệ Double Deep là biến thể của kệ Selective, cho phép lưu trữ 2 pallet chiều sâu. Giải pháp này giúp tăng sức chứa lên khoảng 30–40% so với Selective thông thường.

Kệ VNA ( Very Narrow Ailse)
Kệ VNA là gần như giống 100% với Kệ Selective nhưng được thiết kế đường đi hẹp để tối đa không gian lưu trữ, chỉ từ 1.6-1.8m. Việc này có nhược điểm là không sử dụng được với hầu hết các loại xe nâng như Kệ Selective mà yêu cầu xe nâng VNA chuyên dụng.

Kệ sàn Mezzanine
Kệ sàn Mezzanine giúp nhân đôi hoặc nhân ba diện tích sử dụng kho mà không cần mở rộng mặt bằng, phù hợp kho có trần cao.

Kệ VNA (Very Narrow Aisle)
Kệ VNA là hệ thống kệ kho hàng công nghiệp sử dụng lối đi siêu hẹp, kết hợp xe nâng chuyên dụng dẫn hướng ray hoặc dây từ.
- Tận dụng tối đa chiều cao kho (12–18m)
- Tăng sức chứa lên đến 50% so với kệ truyền thống
- Truy xuất pallet chính xác, an toàn cao
👉 Phù hợp kho logistics hiện đại, kho trung tâm phân phối.

Kệ tay đỡ (Cantilever)
Chuyên dùng để lưu trữ vật liệu dài như thép ống, thép hình, gỗ, nhôm, ống nhựa… giúp xuất nhập hàng thuận tiện, an toàn và tối ưu không gian kho.

Kệ để khuôn
Dùng trong các nhà máy cơ khí, ép nhựa, đúc khuôn, thiết kế tải trọng rất lớn, có ray trượt hoặc kéo khuôn an toàn, giúp bảo quản khuôn mẫu khoa học và dễ thao tác

Kệ Robot Shuttle
Kệ Robot Shuttle là giải pháp lưu trữ bán tự động hoặc tự động, sử dụng robot shuttle di chuyển pallet trong lòng kệ thay cho xe nâng.
- Mật độ lưu trữ cực cao
- Tốc độ xuất nhập nhanh
- Giảm nhân công, tăng độ chính xác
- Phù hợp FIFO & LIFO
👉 Ngoài ra còn có Kệ truy xuất tự động AS/RS và Kệ di động điều khiển tự động cho những kho hàng lớn và lưu lượng hàng hóa cực lớn, cần truy xuất nhanh, giảm nhân công.

Kệ kho công nghiệp tải trọng lớn
Giải pháp cho nhà máy & logistics, đối với các kho chứa nguyên vật liệu nặng, thành phẩm hoặc hàng pallet lớn, Kệ kho công nghiệp tải trọng lớn là lựa chọn bắt buộc. Hệ kệ này được thiết kế:
- Khung cột thép dày
- Beam chịu lực cao
- Đáp ứng tải trọng từ 500kg đến trên 5000kg/pallet
Việc sử dụng Kệ kho thép công nghiệp chất lượng cao giúp đảm bảo tuổi thọ lâu dài và an toàn vận hành.

🎯 Báo giá tham khảo Kệ kho công nghiệp
Giá kệ kho hàng công nghiệp phụ thuộc vào loại kệ, tải trọng, kích thước và vật liệu, do đó cần khảo sát thực tế để báo giá chính xác từ nhà sản xuất.
Dưới đây là bảng giá Kệ kho hàng công nghiệp để quý khách tham khảo:
| Loại kệ | Giá tham khảo (VND/Bộ) |
|---|---|
| Kệ Selective | Giá từ 3.000.000 |
| Kệ Drive-in | Giá từ 4.500.000 |
| Kệ Double Deep | Giá từ 3.500.000 |
| Kệ VNA | Giá từ 2.500.000 |
| Kệ trung tải | Giá từ 1.500.000 |
| Kệ sàn Mezzanine | Giá từ 1.000.000 m² |
| Kệ kho lạnh | Giá từ 3.000.000 |
| Kệ khuôn | Giá từ 10.000.000 |
| Kệ con lăn | Giá từ 2.000.000 |
| Pallet Shuttle | Liên hệ 0944 866 966 |

>>> Xem thêm: Kệ kho hàng [ Giá cực tốt ] – Bảo Hành 5 Năm | Hotu Việt Nam
Tiêu chí lựa chọn Kệ kho công nghiệp phù hợp
1. Tải trọng hàng hóa pallet
Việc xác định tải trọng rất quan trọng và nó quyết định loại Kệ kho hàng phù hợp cho kho hàn
- Hàng hóa dưới 800kg → nên sử dụng Kệ trung tải để tiết kiệm chi phí
- Hàng nặng trên 1000 kg → nên sử dụng Kệ Selective, Kệ Double Deep, Kệ VNA hoặc Kệ Drive-in
- Hàng đồng nhất → nên sử dụng Kệ Drive-in, Kệ Double Deep hoặc Kệ Robot Shuttle
- Hàng đa dạng → Kệ Selective, Kệ sàn Mezzanine
- Hàng dài → nên sử dụng Kệ tay đỡ

2. Diện tích và chiều cao kho
Chiều cao kho quyết định khả năng sử dụng Kệ cao tầng, số tầng sử dụng. Diện tích kho hàng quyết định mật độ kệ kho hàng sắp xếp tương ứng với số hàng hóa cần lưu trữ

3. Quy trình xuất nhập kho
-
FIFO → Với kệ Selective, Kệ Drive-in Through, Kệ VNA
- LIFO → Với Kệ Drive-in, Kệ Double Deep, Kệ Shuttle, Kệ sàn Mezzanine
4. Ngân sách đầu tư
Doanh nghiệp có thể cân nhắc giữa Kệ kho công nghiệp chất lượng tốt với đúng chủng loại để tiết kiệm chi phí tránh việc đầu tư quá mức với lưu lượng hàng hóa cần được lưu trữ.

Giá Kệ kho công nghiệp phụ thuộc vào yếu tố nào?
Nhiều khách hàng tìm kiếm giá Kệ kho công nghiệp hoặc báo giá Kệ kho công nghiệp nhưng thực tế chi phí phụ thuộc vào:
- Loại kệ kho
- Tải trọng thiết kế
- Chiều cao và số tầng
- Diện tích lắp đặt
- Yêu cầu sơn, mạ, tiêu chuẩn kỹ thuật
👉 Vì vậy, giải pháp hiệu quả nhất là thiết kế Kệ kho công nghiệp theo yêu cầu, vừa tối ưu chi phí vừa phù hợp thực tế vận hành.

>>> Xem thêm: Kệ chứa hàng công nghiệp - [ Bảng giá năm 2026 ] HOTU VIỆT NAM
Thiết kế & lắp đặt Kệ kho công nghiệp theo yêu cầu
Hotu Việt Nam là đơn vị hàng đầu sản xuất và cung cấp dịch vụ trọn gói:
- Khảo sát kho thực tế
- Tư vấn giải pháp kệ kho phù hợp
- Thiết kế layout 2D / 3D
- Sản xuất & lắp đặt kệ kho công nghiệp
- Bảo hành, bảo trì dài hạn
Điều này đặc biệt quan trọng với các dự án Kệ kho cho nhà máy sản xuất hoặc kệ kho cho logistics quy mô lớn.

Xu hướng sử dụng Kệ kho công nghiệp hiện nay
- Ưu tiên hệ Kệ kho công nghiệp tiêu chuẩn ISO, CGMP
- Tăng nhu cầu Kệ kho pallet công nghiệp tải trọng lớn
- Thiết kế linh hoạt, dễ mở rộng
- Kết hợp phần mềm quản lý kho (WMS)
Kệ kho công nghiệp không chỉ là thiết bị lưu trữ, mà còn là hạ tầng cốt lõi quyết định hiệu quả vận hành kho hàng và nhà máy. Việc lựa chọn đúng loại Kệ kho hàng công nghiệp, thiết kế phù hợp và lắp đặt chuyên nghiệp sẽ giúp doanh nghiệp tối ưu chi phí, tăng năng suất và sẵn sàng mở rộng trong tương lai.
Nếu bạn đang tìm kiếm giải pháp Kệ kho công nghiệp tải trọng lớn, báo giá Kệ kho công nghiệp hoặc cần tư vấn thiết kế theo yêu cầu, hãy ưu tiên những đơn vị có kinh nghiệm, năng lực sản xuất và dịch vụ hậu mãi rõ ràng để đảm bảo hiệu quả đầu tư lâu dài.

Bạn đang tìm Nhà sản xuất Kệ kho hàng công nghiệp giá cực tốt hàng đầu? HOTU VIỆT NAM là đơn vị sản xuất trực tiếp – không qua trung gian, sở hữu 2 nhà máy Bắc – Nam, nhận thiết kế, sản xuất và lắp đặt kệ kho hàng công nghiệp trên toàn quốc, cam kết giá cạnh tranh – tải trọng chuẩn – bảo hành dài hạn.
CÔNG TY TNHH HOTU VIỆT NAM
🏢 VPDD: Số 10V6B, Khu nhà ở Văn Phú, KĐT Văn Phú, P. Kiến Hưng, TP. Hà Nội
🏭 Nhà máy Miền Bắc: CCN Viglacera, Bình Minh, Thanh Oai, Hà Nội
🏭 Nhà máy Miền Nam: KP3, P. Trảng Dài, TP. Biên Hòa, Đồng Nai
☎️ 0944 866 966 | 📩 tuyendt@hotuvietnam.com 🌐 www.asado.vn
Giải đáp câu hỏi (FAQ)
1. Kệ kho công nghiệp là gì?
Kệ kho công nghiệp là hệ thống kệ lưu trữ chuyên dụng trong kho hàng, nhà máy và trung tâm logistics, được thiết kế bằng thép chịu lực cao để lưu trữ pallet và hàng hóa tải trọng lớn, giúp tối ưu không gian và quản lý kho hiệu quả.
2. Kệ kho công nghiệp gồm những loại phổ biến nào?
Các loại kệ kho công nghiệp phổ biến gồm: Kệ Selective, Kệ Drive-in, Kệ Drive-thru, Kệ Double Deep, Kệ Push Back, Kệ Pallet Flow và Kệ sàn Mezzanine, mỗi loại phù hợp với từng mô hình kho và cách xuất nhập hàng khác nhau.
3. Kệ kho công nghiệp tải trọng bao nhiêu là phù hợp?
Tải trọng kệ kho công nghiệp thường dao động từ 500kg đến trên 3000kg/pallet, tùy theo loại hàng hóa, chiều cao kệ, kết cấu khung cột và beam; việc xác định tải trọng cần dựa trên khảo sát thực tế kho.
4. Kệ Selective có ưu điểm gì so với các loại kệ khác?
Kệ Selective cho phép truy xuất 100% pallet, linh hoạt với nhiều loại hàng hóa, dễ lắp đặt – mở rộng và phù hợp với đa số kho hàng hiện nay, đặc biệt là kho có nhiều mã hàng (SKU).
5. Kho hàng nhỏ có nên dùng kệ kho công nghiệp không?
Có. Ngay cả kho diện tích nhỏ, kệ kho công nghiệp vẫn giúp tận dụng chiều cao kho, sắp xếp hàng hóa khoa học hơn, giảm thất thoát và tăng hiệu quả vận hành so với lưu trữ dưới sàn.
6. Giá kệ kho công nghiệp phụ thuộc vào những yếu tố nào?
Giá kệ kho công nghiệp phụ thuộc vào loại kệ, tải trọng thiết kế, chiều cao – số tầng, diện tích lắp đặt, tiêu chuẩn kỹ thuật và yêu cầu sơn, mạ hoặc tiêu chuẩn
7. Có nên chọn kệ kho công nghiệp giá rẻ không?
Không nên chỉ chọn kệ kho công nghiệp giá rẻ nếu không đảm bảo tiêu chuẩn kỹ thuật, vì kệ kém chất lượng có thể gây mất an toàn, hư hỏng hàng hóa và phát sinh chi phí sửa chữa về lâu dài.
8. Kệ kho công nghiệp có cần thiết kế theo yêu cầu không?
Rất cần thiết. Thiết kế kệ kho công nghiệp theo yêu cầu giúp tối ưu diện tích kho, phù hợp loại hàng hóa, xe nâng và quy trình xuất nhập, đồng thời tối ưu chi phí đầu tư.
9. Kệ kho công nghiệp có đáp ứng tiêu chuẩn ISO, FEM hoặc CGMP không?
Hoàn toàn có thể. Nhiều hệ thống kệ kho công nghiệp hiện nay được thiết kế để đáp ứng tiêu chuẩn ISO, FEM, CGMP, đặc biệt trong ngành thực phẩm, dược phẩm và sản xuất công nghiệp.
10. Khi nào nên thay hoặc nâng cấp hệ thống kệ kho hàng?
Doanh nghiệp nên nâng cấp kệ kho khi kho quá tải, thay đổi loại hàng hóa, mở rộng quy mô, hoặc khi hệ kệ cũ không còn đảm bảo an toàn và hiệu quả vận hành.
Tags:
báo giá kệ kho công nghiệp
giá kệ kho công nghiệp
hệ thống kệ kho công nghiệp
kệ double deep
kệ drive in
kệ drive thru
kệ kho công nghiệp
kệ kho công nghiệp giá rẻ
kệ kho hàng công nghiệp
kệ kho tải trọng lớn
kệ kho thép công nghiệp
kệ lưu trữ công nghiệp
kệ pallet công nghiệp
kệ pallet flow
kệ push back
kệ sàn mezzanine
kệ selective
lắp đặt kệ kho công nghiệp
mua kệ kho công nghiệp
thi công kệ kho công nghiệp
Bình luận:
Nội dung này chưa có bình luận, hãy gửi cho chúng tôi bình luận đầu tiên của bạn.

