-
-
-
Tổng tiền thanh toán:
-
Lắp đặt KỆ KHO HÀNG - Quy trình từ A → Z | HOTU VIỆT NAM
CÔNG TY TNHH CÔNG NGHIỆP ASADO VIỆT NAM
19/11/2025
0 nhận xét
Quy trình Triển khai một dự án KỆ KHO HÀNG chuẩn cần đảm bảo an toàn, phù hợp với nhu cầu từng doanh nghiệp, đảm bảo tiêu chuẩn PCCC và cuối cùng là phải đem lại hiệu quả cao trong hoạt động kinh doanh
Kệ kho hàng đóng vai trò trung tâm trong việc tối ưu hóa không gian lưu trữ và tăng năng suất vận hành. Tuy nhiên, để hệ thống kệ phát huy tối đa hiệu quả, doanh nghiệp không chỉ cần lựa chọn đúng loại kệ mà còn phải lắp đặt theo quy trình chuẩn từ khảo sát – thiết kế – thi công – nghiệm thu.

Phân tích nhu cầu lưu trữ
Phân tích nhu cầu giúp xác định loại kệ tối ưu nhất theo tải trọng, loại hàng hóa, tần suất xuất nhập và ngân sách để đảm bảo giải pháp phù hợp thực tế kho. Trong quá trình phân tích, đội ngũ kỹ thuật sẽ làm việc trực tiếp với khách hàng để hiểu rõ

- Loại hàng hóa lưu trữ (phân loại từ hàng nặng, hàng cồng kềnh, hàng nhỏ lẻ),
- Kích thước, trọng lượng pallet và hàng hóa , cũng như số lượng SKU cần quản lý.
- Tần suất xuất nhập cũng ảnh hưởng đến lựa chọn loại kệ: ví dụ kho có tốc độ xoay vòng liên tục phù hợp với Kệ Selective, còn kho ưu tiên sức chứa phù hợp với Kệ Double Deep hoặc Kệ Drive-in với hàng hóa đồng nhất
- Ngân sách đầu tư và điều kiện vận hành thực tế cũng cần được cân đối để đưa ra giải pháp hiệu quả nhất.


Lựa chọn loại kệ kho phù hợp
Việc lựa chọn kệ phù hợp giúp tối ưu diện tích và tăng năng suất vận hành. Mỗi loại kệ có ưu – nhược điểm riêng và cần căn cứ vào đặc thù ngành.
Tùy vào nhu cầu lưu trữ, doanh nghiệp có thể chọn một trong các giải pháp phổ biến như:
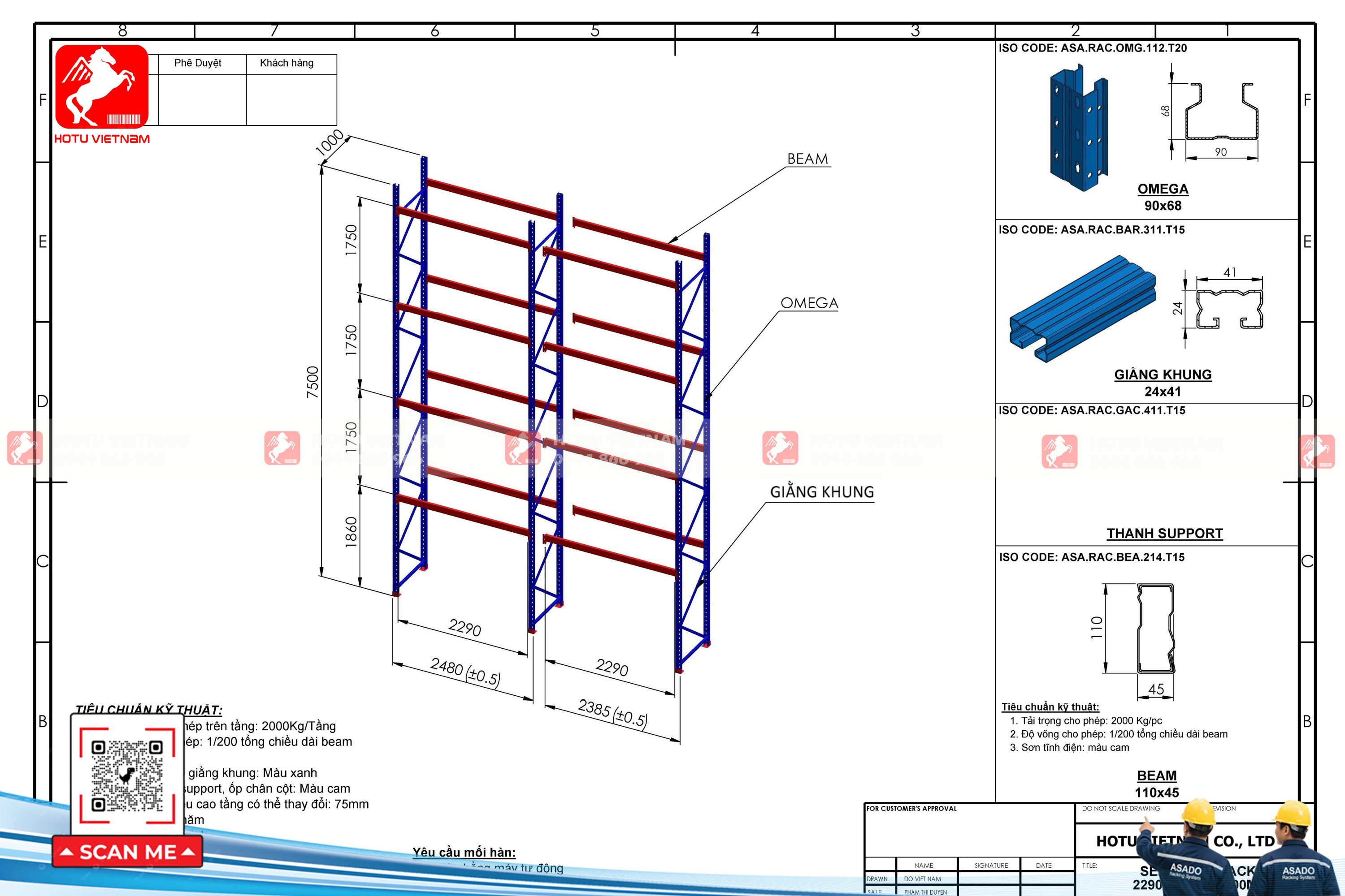
- Kệ Selective: linh hoạt, phù hợp kho có nhiều chủng loại hàng.

- Kệ Double Deep: tăng sức chứa 30–40% so với Selective.

- Kệ Drive-in: tối ưu diện tích, phù hợp kho ít chủng loại, số lượng lớn.

- Kệ trung tải / kệ nhẹ: lưu trữ hàng hóa vừa và nhỏ, không dùng pallet.

- Kệ Mezzanine: nhân đôi diện tích sử dụng mà không cần mở rộng kho.

- Kệ để khuôn: Dùng để lưu trữ khuôn, máy móc, thiết bị, động cơ nặng

- Kệ VNA: Lưu trữ mật độ cao giảm tối thiểu không gian lối đi xe nâng

- Kệ Pallet Shuttle: Kệ lấy Pallet tự động / bán tự động

- Kệ ASRS: Kệ truy xuất tự động hóa cao truy xuất pallet hàng nhanh, hiện đại

Việc chọn sai loại kệ có thể làm giảm hiệu quả hoặc gây lãng phí chi phí. Vì vậy, bước này cần dựa trên sự phân tích kỹ lưỡng trước khi chọn phương án
Thiết kế bản vẽ 2D/3D
Thiết kế 2D giúp xác định bố cục mặt bằng, vị trí từng dãy kệ, chiều rộng lối đi và hướng di chuyển của xe nâng. Trong khi đó, bản vẽ 3D trả giúp doanh nghiệp hình dung trực quan toàn bộ khu vực lưu trữ, bao gồm cấu trúc kệ, chiều cao tầng, thiết bị đi kèm và phụ kiện an toàn và không gian tổng thể đáp ứng các tiêu chuẩn công nghiệp như PCCC....

Sản xuất linh kiện và chuẩn bị thiết bị vật tư
- Lên kế hoạch sản xuất linh kiện : Cột, thanh beam, giằng chéo, giằng ngang, pallet support, rào chắn, mặt sàn kệ và các phụ kiện đi kèm.
- Chuẩn bị vật tư nhằm đảm bảo đúng tiêu chuẩn, đúng tải trọng và phù hợp bản vẽ kỹ thuật.
- Lên kế hoạch Xe nâng, dụng cụ lắp đặt, xe nâng người, thiết bị cầu hàng và thiết bị bảo hộ đều phải chuẩn bị đầy đủ trước khi thi công lắp đặt

Thi công lắp đặt kệ kho
- Dựng khung chính của kệ, cân chỉnh thẳng đứng bằng thước thủy hoặc máy laser để đảm bảo độ chính xác.
- Lắp thanh Beam và giằng vào đúng vị trí, tiếp theo là thanh Support, giằng kệ, mặt sàn kệ
- Cột được cố định với sàn bằng Bulong chắc chắn đảm bảo độ ổn định toàn hệ thống.
- Đội thi công cũng sẽ lắp đặt phụ kiện an toàn như bảo vệ cột, thanh chắn pallet rơi, rào chắn lối đi…
- Lắp đặt thiết bị đi kèm nếu có (thang nâng hàng, thang trượt hàng, dán tem hướng dẫn...)


Kiểm tra an toàn – nghiệm thu
- Đơn vị thi công và doanh nghiệp sẽ cùng kiểm tra độ thẳng, độ chắc chắn của từng bộ phận.
- Tải trọng được kiểm thử bằng các pallet mẫu theo tiêu chuẩn.
- Chiều cao, chiều rộng lối đi, vị trí từng dãy kệ sẽ được đối chiếu với bản vẽ để đảm bảo không sai lệch.
- Sau khi kiểm tra đầy đủ, biên bản nghiệm thu sẽ được lập, đảm bảo rằng mọi hạng mục đều đạt chuẩn.
- Yêu cầu kiểm định (nếu có) từ bên thứ 3


Bàn giao – đưa vào sử dụng
Đơn vị thi công sẽ bàn giao bộ hồ sơ gồm bản vẽ hoàn công, hướng dẫn sử dụng, thông tin phụ kiện và các tiêu chuẩn kỹ thuật. Trong tuần đầu vận hành, doanh nghiệp nên kiểm tra độ ổn định và khả năng đáp ứng nhu cầu lưu trữ thực tế. Nếu có sự khác biệt, sẽ điều chỉnh nhẹ trong phạm vi cho phép.

Bảng giá tham khảo năm 2026
Lưu ý: Bảng giá dưới đây chỉ mang tính chất tham khảo, thực tế sẽ đổi theo thiết kế riêng, vị trí dự án, vật liệu, vận chuyển và phụ kiện đi kèm.
| Loại kệ | Chi phí | Giá tham khảo (VND/Bộ) |
|---|---|---|
| Kệ Trung tải | Thấp–trung | Giá từ 1.500.000 |
| Kệ Selective | Trung bình | Giá từ 3.500.000 |
| Kệ Drive-in/thru | Trung–cao | Giá từ 4.500.000 |
| Kệ Double Deep | Trung–cao | Giá từ 5.500.000 |
| Kệ VNA | Cao | Giá từ 6.500.000 |
| Kệ sàn Mezzanine | Cao | Giá từ 1.000.000 m² |
| Kệ Shuttle Bus | Rất cao | Giá liên hệ |
Địa chỉ mua hàng uy tín
CÔNG TY TNHH HOTU VIỆT NAM
🏢 VPDD: Số 10V6B , Khu nhà ở Văn Phú, Khu đô thị mới Văn Phú, P. Kiến Hưng, TP. Hà Nội
🏭 Nhà máy Miền Bắc : CCN Viglacera, Bình Minh, H. Thanh Oai, TP Hà Nội
🏭 Nhà máy Miền Nam: Tổ 33, Khu Phố 3, Phường Trảng Dài, TP Biên Hòa, Đồng Nai
📞 Mobile/Zalo: 0944 866 966
📩 Email: tuyendt@hotuvietnam.com
Câu hỏi thường gặp
1. Thời gian lắp đặt kệ kho mất bao lâu? Thông thường, thời gian lắp đặt tùy thuộc vào quy mô dự án. Với kho tiêu chuẩn 500–1.000 m², thời gian thi công thường từ 1–2 tuần. Dự án lớn trên 1.000 m² có thể kéo dài hơn
2. Trước khi lắp đặt kệ kho cần chuẩn bị những gì? Doanh nghiệp cần kiểm tra mặt bằng, xác định tải trọng hàng hóa, chiều cao trần kho, tiêu chuẩn PCCC và lối đi xe nâng trước khi triển khai lắp đặt.
3. Kệ kho có cần kiểm định hay xin chứng nhận PCCC không? Có. Tùy loại kho và hệ thống kệ, doanh nghiệp cần đảm bảo khoảng cách trần – kệ, lối thoát hiểm và quy chuẩn PCCC theo quy định của Việt Nam. Một số dự án yêu cầu hồ sơ thẩm duyệt PCCC trước khi đưa vào sử dụng.
4. Kệ kho có thể thay đổi kích thước sau khi lắp đặt không? Có thể. Hầu hết các loại Kệ như Selective, Double Deep, Drive-in , Trung tải đều cho phép tùy chỉnh độ cao tầng và mở rộng hệ thống trong tương lai.
5. Bảo hành kệ kho bao lâu và bao gồm những gì? Thông thường, Hotu Việt Nam cung cấp chính sách bảo hành 5 năm, danh mục bảo hành gồm Kế cấu, lớp xử lý bề mặt, thiết bị theo kèm nếu có
Bình luận:
Nội dung này chưa có bình luận, hãy gửi cho chúng tôi bình luận đầu tiên của bạn.

