Thông số cơ bản
| Hạng mục |
Thông số kỹ thuật |
| Kích thước tiêu chuẩn |
Theo yêu cầu khách hàng |
| Tải trọng mỗi tầng |
từ 1000-5000 kg/tầng |
| Số tầng chứa hàng |
2-3-4-5 tầng |
| Vật liệu |
Thép tiêu chuẩn JIS - Nhật Bản |
| Mặt sàn (tùy chọn) |
Mặt tôn/Lưới/Gỗ/Support |
| Phương tiện sử dụng |
Xe nâng tay, xe nâng động cơ, xe nâng điện |
| Màu sơn tiêu chuẩn |
Mạ kẽm và cam ( Mầu tùy chọn) |
| Ứng dụng chính |
Kho hàng công nghiệp, kho logistic, kho hàng tiêu dùng, kho lạnh |
| Bảo hành |
5 Năm ( Tuổi thọ 10-20 năm) |
| Đơn vị sản xuất – lắp đặt |
HOTU VIỆT NAM |







>>> Xem thêm: Bảng giá Tham khảo Kệ Seletive [MỚI NHẤT] năm 2026


" Công ty TNHH Hotu Việt Nam là doanh nghiệp hàng đầu chuyên sản xuất các loại Kệ kho hàng với đa dạng chủng loại về mẫu mã và tải trọng cung cấp trên toàn quốc "
Giới thiệu chung về Kệ Selective,
Kệ Selective là gì ?
Kệ selective (Selective Racking System) là gì là một trong những hệ thống kệ kho hàng phổ biến nhất hiện nay, được thiết kế để lưu trữ hàng hóa trên các pallet một cách linh hoạt và dễ dàng tiếp cận. Tên gọi "Selective" (lựa chọn) xuất phát từ khả năng cho phép truy cập trực tiếp 100% đến từng pallet riêng lẻ mà không cần di chuyển các pallet khác.
Kệ Selective lưu trữ hàng hóa trên pallet hoặc rời, giúp quý khách dễ dàng tiếp cận 100% các sản phẩm. Điều này không chỉ tối ưu hóa việc xuất nhập hàng mà còn tiết kiệm đáng kể thời gian và chi phí. Với khả năng điều chỉnh linh hoạt, Kệ Selective phù hợp với đa dạng các loại hàng hóa, từ tải trọng trung bình đến nặng.
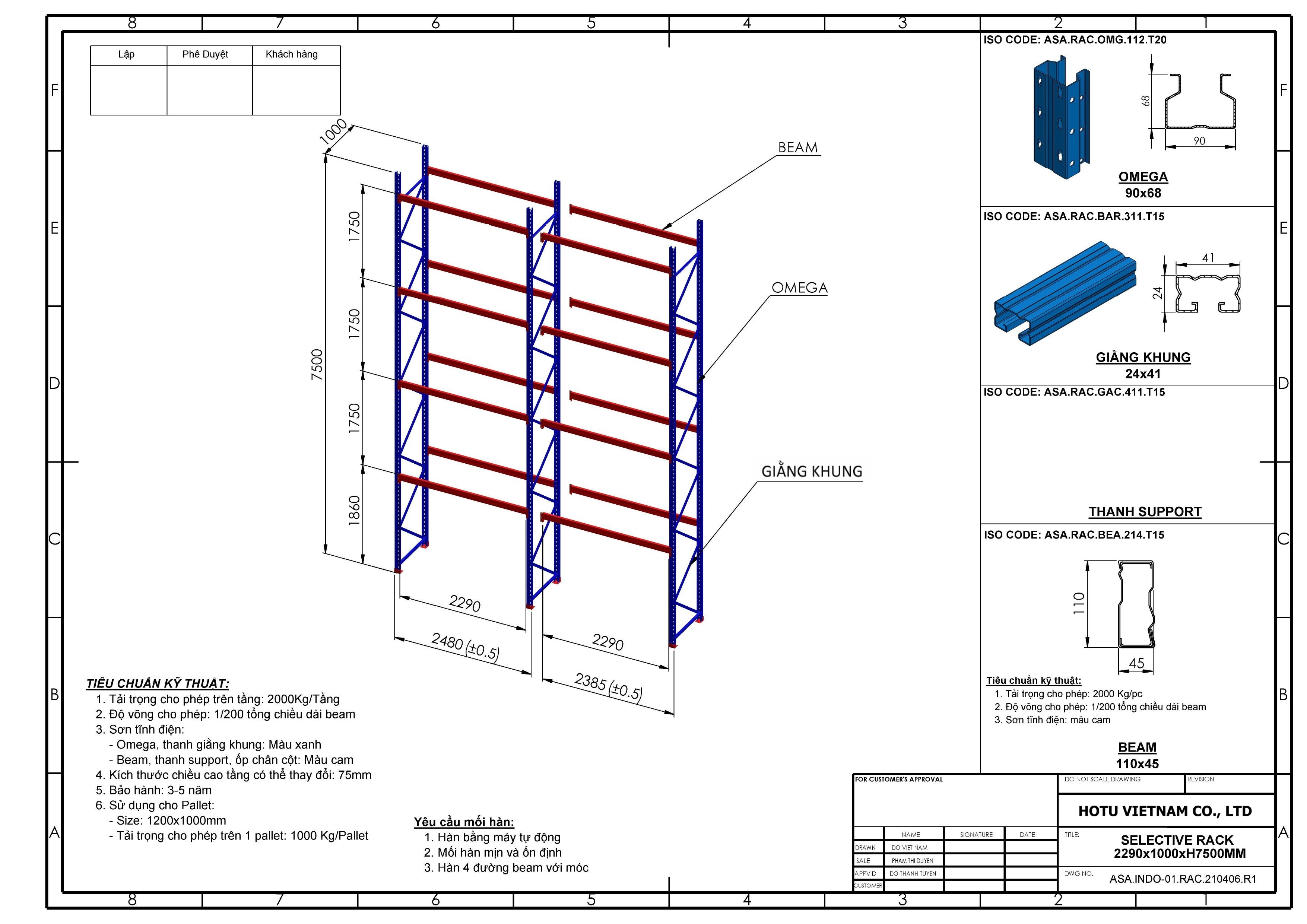
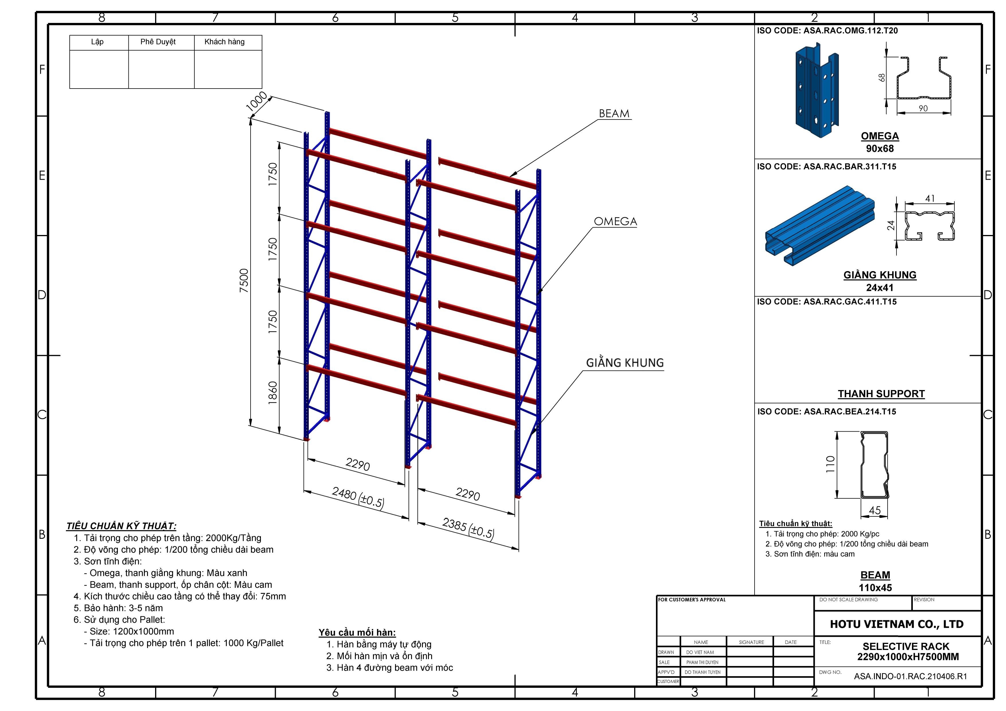
Cấu tạo của Kệ Selective
Kệ Selective có cấu tạo đơn giản nhưng chắc chắn, được lắp ráp bằng các bu lông và ốc vít, giúp dễ dàng tháo lắp, di chuyển hoặc điều chỉnh khi cần thiết. Các bộ phận chính bao gồm:



Vật liệu làm Kệ Selective
Kệ Selective được làm từ thép cuộn hoặc tấm cán nóng hoặc cán nguội từ các nhà sản xuát cung ứng thép uy tín từ Nhật Bản, Hàn Quốc, Đài Loan, Việt Nam ... đạt chứng nhận quản lý chất lượng ISO 9001



Ưu và nhược điểm Kệ Selective
Ưu điểm:
- Tiếp cận hàng hóa 100%: Đây là ưu điểm nổi bật nhất, cho phép xe nâng hoặc người dùng tiếp cận trực tiếp bất kỳ pallet nào mà không cần di chuyển pallet khác. Điều này rất phù hợp với nguyên tắc xuất nhập hàng FIFO (First In, First Out) hoặc LIFO (Last In, First Out) tùy theo nhu cầu.
- Linh hoạt cao: Dễ dàng điều chỉnh khoảng cách giữa các tầng beam để phù hợp với nhiều kích thước pallet và chủng loại hàng hóa khác nhau.
- Đa dạng ứng dụng: Phù hợp với nhiều loại kho hàng, từ kho thông thường đến kho lạnh, kho vật tư, nguyên vật liệu sản xuất, thành phẩm, kho thực phẩm, dược phẩm, v.v.
- Chi phí đầu tư hợp lý: So với các loại kệ khác có mật độ lưu trữ cao hơn, chi phí đầu tư ban đầu cho kệ Selective thường thấp hơn và dễ bảo trì.
- Tương thích với mọi loại xe nâng: Kệ Selective có lối đi rộng, không yêu cầu xe nâng chuyên dụng, giúp doanh nghiệp tiết kiệm chi phí đầu tư thiết bị.
- Dễ dàng quản lý tồn kho: Khả năng tiếp cận trực tiếp từng pallet giúp việc kiểm soát, phân loại và quản lý hàng hóa trong kho trở nên đơn giản, hiệu quả hơn.
>>> Xem thêm: Cập nhật Bảng báo giá Kệ Selective 2025 mới nhất quý khách có thể tham khảo
Nhược điểm:
- Tối ưu không gian chưa cao: Do cần không gian lối đi rộng cho xe nâng, mật độ lưu trữ của kệ Selective không cao bằng các hệ thống kệ khác như kệ Double Deep hay Drive-in, làm giảm tỷ lệ lấp đầy kho (khoảng 40% - 60%).
- Không phù hợp với hàng hóa quá khổ, quá dài: Mặc dù linh hoạt, nhưng kệ Selective có thể không tối ưu cho việc lưu trữ các mặt hàng quá dài, cồng kềnh mà không đóng thành pallet chuẩn.
- Chi phí có thể cao với kho lớn: Đối với các kho hàng rất lớn cần lưu trữ số lượng hàng hóa khổng lồ, chi phí đầu tư tổng thể có thể cao do cần nhiều diện tích cho lối đi.
Phạm vi ứng dụng Kệ Selective
Kệ Selective được ứng dụng rộng rãi trong nhiều ngành công nghiệp và loại hình kho bãi khác nhau nhờ tính linh hoạt, hiệu quả cũng như việc thích ứng với hầu hết loại xe nâng hàng
1. Ứng dụng theo đặc điểm kho hàng

- Kho hàng có đa dạng chủng loại sản phẩm: Đây là ứng dụng nổi bật nhất của kệ selective. Hệ thống kệ này cho phép lưu trữ nhiều loại hàng hóa với kích thước và tải trọng khác nhau trên cùng một dãy kệ. Mỗi tầng kệ có thể điều chỉnh độ cao linh hoạt để phù hợp với từng loại hàng, giúp tối ưu không gian lưu trữ hiệu quả.
- Kho hàng có nhu cầu xuất nhập hàng liên tục: Kệ selective được thiết kế với lối đi rộng, cho phép xe nâng tiếp cận 100% pallet hàng hóa. Điều này giúp quá trình xuất nhập hàng diễn ra nhanh chóng, dễ dàng, không bị cản trở bởi các pallet khác.
- Kho hàng có mật độ lưu trữ trung bình: Kệ selective là giải pháp lý tưởng cho các kho hàng cần cân bằng giữa việc lưu trữ hàng hóa và khả năng truy cập nhanh chóng. Mặc dù không tối ưu diện tích bằng các loại kệ có mật độ cao như kệ drive-in, kệ selective lại mang đến sự linh hoạt vượt trội trong quản lý hàng tồn kho.
- Kho hàng lạnh (kho đông, kho mát): Với chất liệu thép sơn tĩnh điện hoặc mạ kẽm nhúng nóng, kệ selective có khả năng chống oxy hóa và chịu được nhiệt độ thấp, lý tưởng để lưu trữ thực phẩm đông lạnh, dược phẩm hoặc các sản phẩm nhạy cảm với nhiệt độ.
- Kho hàng có nhiều loại xe nâng: Kệ selective tương thích với hầu hết các loại xe nâng phổ biến trên thị trường, từ xe nâng đối trọng (counterbalance forklift) đến xe nâng reach truck. Điều này giúp doanh nghiệp tiết kiệm chi phí đầu tư vào xe nâng chuyên dụng.
2. Ứng dụng theo ngành nghề cụ thể



Kệ Selective có thể được sử dụng trong hầu hết các lĩnh vực công nghiệp và thương mại như Logistic, công nghiệp, dược y tế và thực phẩm, điện tử ...
- Ngành logistics và trung tâm phân phối: Nơi cần xuất nhập hàng liên tục, quản lý tồn kho chính xác và lưu trữ đa dạng mặt hàng.
- Ngành sản xuất và công nghiệp nặng: Lưu trữ nguyên vật liệu, bán thành phẩm, cuộn dây, hóa chất, phụ tùng ô tô, xe máy, v.v.
- Ngành thực phẩm và đồ uống: Bảo quản thực phẩm khô, đồ uống đóng chai, hoặc sử dụng trong kho lạnh để trữ thực phẩm đông lạnh.
- Ngành điện tử và công nghệ: Lưu trữ linh kiện, thiết bị điện tử, sản phẩm hoàn chỉnh với tải trọng lớn.
- Ngành dệt may: Lưu trữ cuộn vải, nguyên phụ liệu sản xuất.
- Ngành bán lẻ và siêu thị: Sử dụng trong kho hàng để lưu trữ hàng hóa dự trữ với số lượng lớn, hỗ trợ việc bổ sung hàng lên kệ trưng bày.
Nhờ vào những ưu điểm vượt trội về sự linh hoạt và khả năng tiếp cận hàng hóa, kệ selective là lựa chọn phổ biến và hiệu quả cho nhiều doanh nghiệp, từ kho vừa và nhỏ đến các trung tâm phân phối quy mô lớn.
🥇 Địa chỉ mua hàng uy tín
CÔNG TY TNHH HOTU VIỆT NAM
🏢 VPDD: Số 10V6B, Khu nhà ở Văn Phú, Khu đô thị mới Văn Phú, P. Kiến Hưng, TP. Hà Nội
🏭 Nhà máy Miền Bắc: CCN Viglacera, Bình Minh, H. Thanh Oai, TP Hà Nội
🏭 Nhà máy Miền Nam: Tổ 33, Khu Phố 3, Phường Trảng Dài, TP Biên Hòa, Đồng Nai
☎️ Mobile/Zalo: 0944 866 966
📩 Email: tuyendt@hotuvietnam.com
🌐 Website: www.asado.vn


